Skip To Content

3993 Pendragon Cir

Milton, FL 32583
  • $229,900
  • STATUS: Closed
  • ON SITE: 254 Days
  • MLS #: 667078
Sold - 11/25/2025
$229,900
SOLD - 11/25/2025
  • 3
    BEDS
  • 0.06
    ACRES
  • 2
    BATHS
  • 1
    1/2 BATHS
  • 1,537
    SQFT
  • $0
    $/SQFT
Neighborhood:
Type:
Townhouse
Built:
2025
County:
Area:

School Information

Elementary School:
Middle School:
High School:

Description

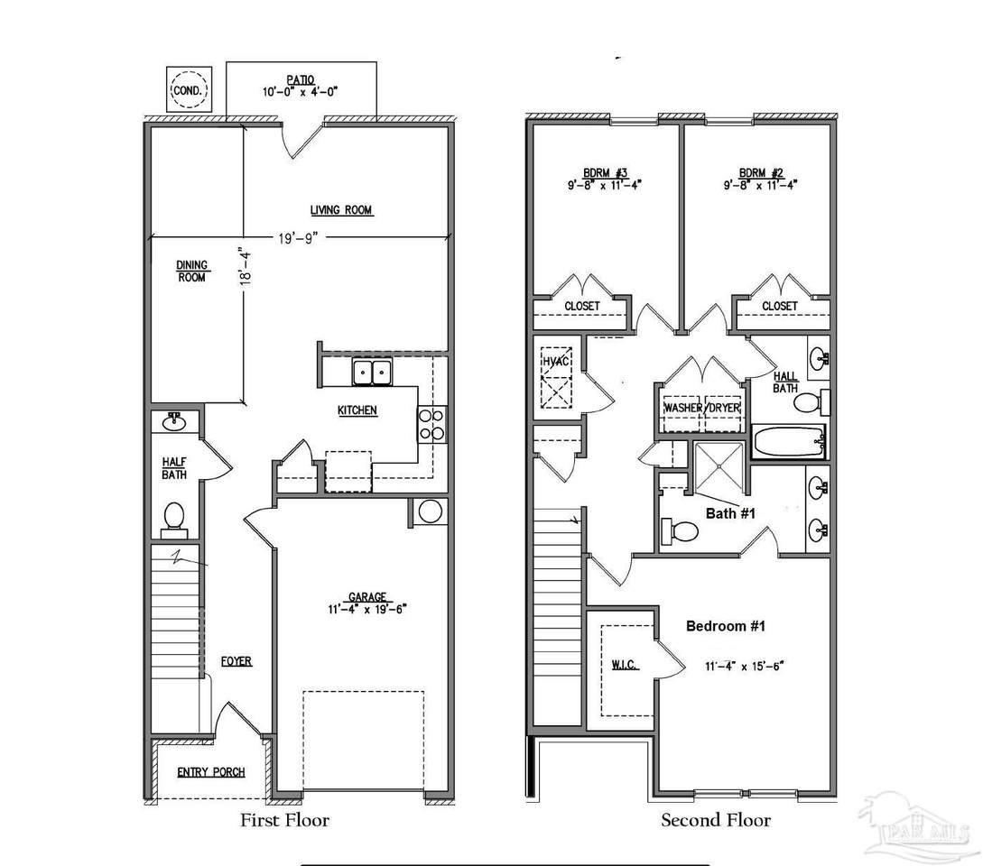
Welcome to Lancelot Townhomes! The Palm plan boasts 3 beds, 2.5 baths and a 1 car garage. The kitchen features quartz countertops, a spacious breakfast bar, pantry, and stainless-steel appliances. Bedroom 1 offers a generous walk-in closet and an adjoining bath with a vanity, large shower, and linen closet. These townhomes are not only stylish but also equipped with fabric hurricane window and door protection, ensuring your safety. Plus, this townhome includes a Smart Home Technology package. Nestled in a prime location, future residents can enjoy a fantastic community playground and dog park. With easy access to Highway 281, you’re just a short drive away from stunning Gulf Coast beaches, vibrant shopping, delightful dining, excellent schools, the scenic Blackwater River, and NAS Whiting Field.

Monthly Payment Calculator



© 2026 by the Multiple Listing Service of the Pensacola Association of REALTORS®. This information is believed to be accurate but is not guaranteed. Subject to verification by all parties. This data is copyrighted and may not be transmitted, retransmitted, copied, framed, repurposed, or altered in any way for any other site, individual and/or purpose without the express written permission of the Multiple Listing Service of the Pensacola Association of REALTORS®. Florida recognizes single and transaction agency relationships. Information Deemed Reliable But Not Guaranteed. Any use of search facilities of data on this site, other than by a consumer looking to purchase real estate, is prohibited. Data last updated: 2026-03-14T08:54:25.483.
www.gulfshoresobarealestate.com/homes/165481408
Print Image

3993 Pendragon Cir Milton, FL 32583

  • Price: $234,900
  • Status: Closed
  • On Site: 254 Days
  • Updated: 13 min ago
  • MLS #: 667078
3
Beds
2
Baths
1
½ Baths
0.06
Acres
1,537
SQFT
$0
$/SQFT
2025
Built
Neighborhood:
Lancelot Townhomes
County:
Santa Rosa
Area:
Milton
Elementary School:
Bennett C Russell
Middle School:
Avalon
High School:
Milton
Property Description
Welcome to Lancelot Townhomes! The Palm plan boasts 3 beds, 2.5 baths and a 1 car garage. The kitchen features quartz countertops, a spacious breakfast bar, pantry, and stainless-steel appliances. Bedroom 1 offers a generous walk-in closet and an adjoining bath with a vanity, large shower, and linen closet. These townhomes are not only stylish but also equipped with fabric hurricane window and door protection, ensuring your safety. Plus, this townhome includes a Smart Home Technology package. Nestled in a prime location, future residents can enjoy a fantastic community playground and dog park. With easy access to Highway 281, you’re just a short drive away from stunning Gulf Coast beaches, vibrant shopping, delightful dining, excellent schools, the scenic Blackwater River, and NAS Whiting Field.
Exterior Features

Architectural Style Craftsman Carport YN No Construction Materials Frame Covered Spaces 1 Foundation Details Slab Garage YN Yes Levels Two Lot Features Central Access Parking Features GarageFront EntranceGarage Door Opener Parking Total 1 Pool Features None Road Surface Type Paved Roof Shingle

Interior Features

Appliances Electric Water Heater Cooling Multi UnitsCentral Air Cooling YN Yes Flooring VinylSimulated Wood Heating Central Heating YN Yes Room Dining Room Features Breakfast BarLiving/Dining Combo Room Kitchen Features Not UpdatedKitchen IslandPantry Window Features Double Pane Windows

Property Features

Association Fee 450 Association Fee Frequency Annually Association Fee Includes Association Association YN Yes Building Area Total 1537 Community Features Sidewalks Electric Circuit BreakersCopper Wiring Homestead Yes Horse YN No Listing Agreement Exclusive Right To Sell New Construction YN Yes Property Attached YN Yes Property Condition New Construction Property Sub Type Res Attached Rent Restrictions Unknown Road Responsibility Public Maintained Road Sale Rent For Sale Sale Subject To Lease No Security Features Smoke Detector(s) Sewer Public Sewer Water Source Public Zoning Description Deed Restrictions

Listing provided by D R Horton Realty of NW Florida, LLC: 850-377-2101.


© 2026 by the Multiple Listing Service of the Pensacola Association of REALTORS®. This information is believed to be accurate but is not guaranteed. Subject to verification by all parties. This data is copyrighted and may not be transmitted, retransmitted, copied, framed, repurposed, or altered in any way for any other site, individual and/or purpose without the express written permission of the Multiple Listing Service of the Pensacola Association of REALTORS®. Florida recognizes single and transaction agency relationships. Information Deemed Reliable But Not Guaranteed. Any use of search facilities of data on this site, other than by a consumer looking to purchase real estate, is prohibited. Data last updated: 2026-03-14T08:54:25.483.
 
https://bt-photos.global.ssl.fastly.net/pensacola/1280_boomver_1_667078-2.jpg https://bt-photos.global.ssl.fastly.net/pensacola/1280_boomver_1_667078-2.jpg https://bt-photos.global.ssl.fastly.net/pensacola/1280_boomver_1_667078-2.jpg
Logo
RE/MAX Paradise
24037 Perdido Beach Blvd.
Orange Beach AL, 36561